Calm Waters Waterfront Cottages @ Sussex Inlet, No. 5 Garden View | Resort in Sussex Inlet

Resort in Sussex Inlet
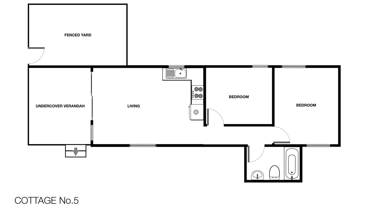
Calm Waters is a laid back, waterfront resort consisting of 6 one, two and three bedroom cottagessituated right in the heart of Sussex Inlet. Built in the1940s originally asFisherman's cottages, they have been lovingly and respectfully restored to ensure guests have allthe modern necessities including air con and Wi-Fi while maintaining their period features including polished hardwood timber floors, pressed metal ceilingsand picture rails. Ideally situated on the waters edge with private jetty and moorings, Calm Waters is the perfect place to stay for those who wish to enjoythe relaxing and rejuvenatingeffects of the sea. Sit onyour private verandahreading a book and let the gentle sea breeze wash over you, take a stroll along the pedestrian path into townor head down to the water and spend the afternoon fishing off the resort's private jetty. Sussex Inlet is a sleepy seaside town best enjoyed on or by the water. Boat hire, canoe hire and paddle-board hire is located 200m along the cycle-path and for those with their own boats there are 3 private moorings and plenty of parking for trailers on the property. Please contact us at your time of booking so we can reserve a mooring for your use during your stay. Each cottage is fully self contained with well equipped kitchens, dining and lounge areas, privatebathrooms and covered private verandahs. Cottages 1 & 2 and Cottages 3 & 4 can be combined to suitlarger groups. Each cottage contains consumables including tea & coffee toilet paper, cling wrap, foil, hand-wash, detergentetcfor your convenience. Please let us know if you require a high chair or porta-cot at your time of booking and we will make sure these are provided in your room. Bed linen is provided for each bed, with the main bedroom made up ready for your arrival. Please note that a towel package is available as an add-on when booking otherwise guests are asked to bring their own bath and beach towels. Being animal lovers we understand that leaving your pets behind when you go on holidays can be heartbreaking and worry-some which is why Calm Waters is a pet-friendly property. If you would like to bring your pet please send us an email to see if we can accommodate your needs. The property features a shared laundry with washing machine, laundry tub and dryer and portable BBQs that guests can use throughout their stay. For large group bookings please contact us directly via the Contact Us page or call 0491 037 886so we can discuss your requirements. - Calm Waters is a laid back, waterfront resort consisting of 6 two and three bedroom cottages situated on the river right in the heart of Sussex Inlet. Built in the 1940s originally as Fisherman's cottages, they have been lovingly and respectfully restored to ensure guests have all the modern necessities including air-con and Wi-Fi while maintaining their period features including polished hardwood timber floors, pressed metal ceilings and picture rails.
Ideally situated on the water's edge with private jetty and moorings, Calm Waters is the perfect place to stay for those who wish to enjoy the relaxing and rejuvenating effects of the river. Sit on your private verandah reading a book and let the gentle sea breeze wash over you, take a stroll along the pedestrian path into town or head down to the water and spend the afternoon fishing off the resort's private jetty.
Sussex Inlet is a sleepy seaside town best enjoyed on or by the water. Boat hire, canoe hire and paddle-board hire is located 200m along the cycle-path and for those with their own boats there are 3 private moorings and plenty of parking for trailers on the property. Please contact us at your time of booking so we can reserve a mooring for your use during your stay.
Each cottage is fully self-contained with well equipped kitchens, dining and lounge areas, private bathrooms and covered private verandahs. Cottages 1 & 2 and Cottages 3 & 4 can be combined to suit larger groups. Each cottage contains consumables including tea & coffee toilet paper, cling wrap, foil, hand-wash, detergent etc for your convenience. Please let us know if you require a high chair or porta-cot at your time of booking and we will make sure these are provided in your room. Bed linen is provided for each bed, with the main bedroom made up ready for your arrival. Please note that a towel package is available as an add-on when booking otherwise guests are asked to bring their own bath and beach towels.
Being animal lovers we understand that leaving your pets behind when you go on holidays can be heartbreaking and worry-some which is why Calm Waters is a pet-friendly property. If you would like to bring your pet please send us an email to see if we can accommodate your needs. (Please note, we only allow one pet per stay per cottage, upon application)
The property features a shared laundry with washing machine, laundry tub and dryer and portable BBQs that guests can use throughout their stay.
For large group bookings please contact us directly via the Contact Us page or call 0491 037 886 so we can discuss your requirements.
This 2 Bedrooms Resort provides accommodation with Entertainment, Barbecue/Outdoor Cooking, Child Friendly, for your convenience. This Resort features many amenities for guests who want to stay for a few days, a weekend or probably a longer vacation with family, friends or group. The rental Resort has 2 Bedrooms and 1 Bathroom to make you feel right at home.
Check to see if this Resort has the amenities you need and a location that makes this a great choice to stay in Sussex Inlet. Enjoy your stay in Sussex Inlet at this Resort.
Prices and Availability
The last seen price for this Resort was USD $167
Amenities
Facility Overview
-
Private bathroom
-
Bathtub
-
Heating
-
Air conditioning
-
Bed sheets
-
Iron/ironing board
-
Dryer
-
Dishwasher
-
Stovetop
-
Microwave
-
Dining room
-
Oven
-
Refrigerator
-
Toaster
-
Cookware/dishes/utensils
-
Kitchen
-
TV
-
DVD player
-
English
-
Smoke-free property
-
Laundry facilities
-
Microwave
-
DVD player
-
Highchair
-
Separate living room
-
Separate dining area
-
Refrigerator
-
Kitchen
-
Laundry facilities
-
Available in all rooms: WiFi
-
Available in some public areas: WiFi
-
BBQ grill(s)
-
Garden
-
Balcony
Policies
Extra-person charges may apply and vary depending on property policy government-issued photo identification and a credit card, debit card, or cash deposit may be required at check-in for incidental charges parties and events are allowed on site safety features at this property include a fire extinguisher, a smoke detector, and a first aid kit special requests are subject to availability upon check-in and may incur additional charges; special requests cannot be guaranteed this property is managed through our partner, vrbo. you will receive an email from vrbo with a link to a vrbo account, where you can change or cancel your reservation
Reviews
- 538 ft² Resort
- Parking
- Pool
- Balcony/Terrace
- Air Conditioner
- Parking
- Balcony/Terrace
- 355 ft² House
- Air Conditioner
- Parking
- Pet Friendly
- 139 ft² House
- Air Conditioner
- Pet Friendly
- Fireplace/Heating
- Air Conditioner
- Balcony/Terrace
- Security/Safety