Endless Summer - Pet Friendly Absolute Beachfront | House in Culburra Beach

3 Bedroom House in Culburra Beach
2025 Award Winner - Best Luxury Property.
Just a one-minute walk down the back garden and you’ll be sinking your toes into the golden sands of beautiful Culburra Beach.
From sunrise to sunset, Endless Summer will provide you with everything you need to enjoy your stay in the beautiful coastal town of Culburra Beach. Wake up to the sound of waves crashing on the beach and make yourself a Nespresso to enjoy on the sun-soaked balcony with a breathtaking view of the ocean and local flora. When the urge strikes to have your first swim of the day, you can grab a towel and float as long as you like in the soothing waves. After that, your only problem is deciding how to spend the rest of your day in one of the most beautiful places in the country.
Stay inside comfortably an any weather and enjoy some quality fun with the family by stretching out on the comfortable couches to watch Netflix, or take a board game to the table for a battle of wits. When the weather is good (and it usually is), round everyone up in the backyard and cook up a storm on the BBQ to enjoy with your favourite tunes blasting on the portable Bluetooth speaker and your four-legged friends running to their heart’s content in the fully-fenced yard. For some quiet time in the afternoon, take a book outside and relax on the deck chairs, in the backyard hammock, or in the shade under the big tree, or recline inside on the daybed for a cosy nap.
Once you’re fed and rested, it’s time to see the sights; the shining sands and sparkling waves of Warrain Beach and Culburra Beach will always be close by, as is Penguin Head with its breathtaking view off the point of the headland. Lake Woollumboola is just a two minute walk from the house with a kids play area and BBQs to stay entertained. For more adventure, you can hop in the car and drive twenty minutes to the world-famous white sands of Jervis Bay, or explore the local shops.
There’s so much to see and do, however you spend your time in this beautiful vista, Endless Summer will ensure all the memories you make are happy ones to last a lifetime.
Important Information:
- A small amount from every booking is donated to local charities — a booking with Professional Holiday Homes supports local communities.
- We supply a number of basic pantry items at each property. We are, however, unable to guarantee the availability of all pantry items. 3 toilet rolls are supplied per bathroom. You may wish to bring additional supplies with you.
- Internet in regional areas can be inconsistent and uninterrupted supply is not guaranteed. We will not provide compensation for failure or unexpected unavailability of internet services.
- Whilst the majority of properties provide access to streaming services, guests may be required to log in via their own accounts.
- The total price stated includes a credit card fee of 1.9%. Please note that in the event of cancellation, the credit card fee will not be refunded.
- Fencing: The property is fully fenced
- We welcome responsible guests that will not cause disturbance to our neighbours.
- For our pet friendly properties, pets are welcome inside but not on furniture or beds (please bring a blanket).
- After booking you must sign a rental agreement. Please contact us prior to booking if you'd like to view a copy.
- No schoolies groups are permitted.
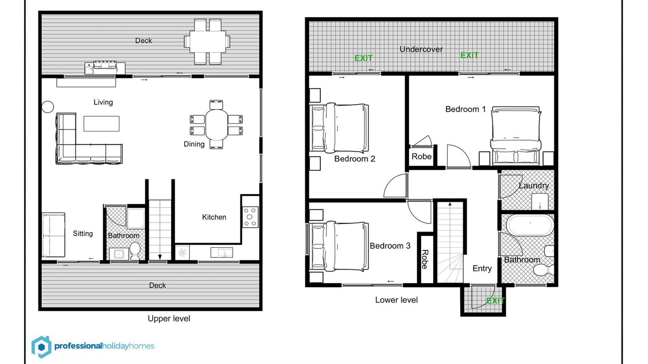
This 3 Bedrooms House provides accommodation with Kitchen, Balcony/Terrace, Sports/Activities, for your convenience. This House features many amenities for guests who want to stay for a few days, a weekend or probably a longer vacation with family, friends or group. The rental House has 3 Bedrooms and 2 Bathrooms to make you feel right at home.
Check to see if this House has the amenities you need and a location that makes this a great choice to stay in Culburra Beach. Enjoy your stay in Culburra Beach at this House.
Amenities
Facility Overview
-
Heating
-
Towels provided
-
Shower
-
2 bathrooms
-
Hair dryer
-
Bed sheets provided
-
Day bed
-
3 bedrooms
-
Dining room
-
Toaster
-
Cookware/dishes/utensils
-
Coffee/tea maker
-
Oven
-
Refrigerator
-
Dishwasher
-
Spices
-
Microwave
-
Stovetop
-
Washing machine and dryer
-
Laundry facilities
-
Near laundromat
-
Near the beach
-
Onsite parking
-
Car recommended
-
Pet friendly
-
Smoke-free property
-
Horse riding nearby
-
Surfing/body boarding nearby
-
Mountain biking nearby
-
Jet skiing nearby
-
Golf nearby
-
Sailing nearby
-
Swimming nearby
-
Parasailing nearby
-
Ecotours nearby
-
Stereo
-
Games
-
Netflix
-
Streaming services
-
Books
-
TV
-
DVD player
-
English
-
Near the bay
-
In a rural location
-
Near the sea
-
Near a zoo
-
In a village
-
Highchair
-
Children's toys
-
Travel crib
-
Iron/ironing board
-
Free WiFi, with speed of 50+ Mbps
-
Fenced yard
-
Balcony
-
Barbecue grill
-
Garden
-
Carbon monoxide detector not reported (host has not indicated whether there is a carbon monoxide detector on the property; consider bringing a portable detector)
-
Smoke detector installed (host has indicated there is a smoke detector on the property)
Policies
Extra-person charges may apply and vary depending on property policy government-issued photo identification and a credit card, debit card, or cash deposit may be required at check-in for incidental charges host has indicated there is a smoke detector on the property host has not indicated whether there is a carbon monoxide detector on the property; consider bringing a portable detector with you on the trip onsite parties or group events are strictly prohibited property registration number pid-stra-395 special requests are subject to availability upon check-in and may incur additional charges; special requests cannot be guaranteed this property is managed through our partner, vrbo. you will receive an email from vrbo with a link to a vrbo account, where you can change or cancel your reservation