Seaview House Queenscliff | House in Queenscliff

15 Bedroom House in Queenscliff
Summary:
Boutique group accommodation which sleeps up to 35 guests.
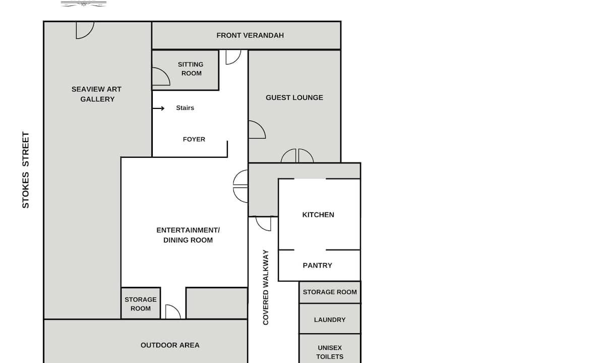
Seaview House Queenscliff, built in 1875, the property includes elegant charm with modern comforts. There are 15 bedrooms with private ensuites. Facilities include exclusive use of multiple lounges, large commercial style kitchen, dining/bar area, courtyard, balcony and laundry. located in the heart of historic Queenscliff. Walking distance to the beach, boutique shops and eateries.
The Space:
Pet-friendly property with a secure courtyard.
FREE and fast NBN wifi accessible throughout the entire house
It is a perfect venue for celebrations, multi-generation family gatherings, retreats, corporate groups, or other special interest groups with all the facilities and comforts you have at home and more.
Bedrooms:
15 rooms (Located on the first floor- platform stair lift available for access)
1: 1 x Queen bed
2: 1 x King bed OR 2 x Single beds
3: 1 x Queen bed and 1 x Single bed
4: 1 x Double bed and 1 x Single bed
7: 1 x Queen bed
8: 1 x Double bed
9: 1 x King bed OR 2 x Single beds
10: 1 x Double bed
11: 1 x King bed OR 2 x Single beds
12: 1 x Queen bed
14: 1 x Queen bed and 1 x Single bed
15: 1 x Queen bed
16: 1 x Queen bed
17: 1 x Queen bed
18: 2 x King beds OR 4 Single beds, plus 1 x single fold bed (available on request)
All beds are triple-sheeted, and towels, tissues, soap, shampoo, conditioner, and hairdryers are provided
Guest Access:
A fully equipped, commercial-style kitchen is available, complete with all the utensils needed for cooking or catering. It includes extensive serving ware, crockery, glassware, and cutlery. If you prefer, you can arrange for an external caterer to make use of the kitchen during your stay which is a popular option when hosting a celebration, special event, or simply enjoying a hassle-free meal with your guests.
There is a secure courtyard at the rear of the property which includes 2 x toilets and a laundry. We also store a table tennis table and other recreational games for guest use. The courtyard is secure so guests may store bikes, surfboards, etc. in this area.
There is no parking on the property; however, there is unmetered all-day parking around the front and side streets.
The Neighborhood:
Visitors have enjoyed the sights, hospitality and sea air of Queenscliff and Point Lonsdale for over 150 years. The impressive heritage architecture in Queenscliff nods to the Victorian-era hotels and grand buildings, whilst the relaxed pace in beachside Point Lonsdale has been an idyllic coastal escape for families for generations.
It is located on the main street and only one block from beach access.
Remarkable golf courses: Queenscliff Island Golf Course, Lonsdale Links and over 20 regional courses.
Fantastic walks and bike rides (Point Nepean National Park, Bellarine Rail Trail, to name a couple).
Bellarine Rail offers a family-friendly steam train journey between Queenscliff and Drysdale- an enjoyable experience for all ages. For something truly unique, hop aboard The Blues Train, a moving mini music festival set on a heritage train, departing from the charming seaside town of Queenscliff. Or indulge in a memorable dining experience aboard The Q Train, where gourmet cuisine meets scenic rail travel along the Bellarine Railway.
Other attractions include:
Historic Fort Queenscliff, Regional Wineries, Fishing, diving charters, Sea All dolphin swims, Marine Discovery Centre, Maritime museum and many beautiful art galleries including our very own right next door- Seaview Art Gallery.
Queenscliff and Sorrento car and passenger ferry 1 km from Seaview House.
Day Spa, yoga, and pilates are close by.
Local annual events: Queenscliff Music Festival, held the last weekend in November. Hot Rod Weekend is held the first week of February.
Getting Around:
A perfect location in the heart of Queenscliff. Walking distance to major attractions in the historic township and marina. Easy walking and bike trails to nearby townships.
Public bus available Geelong to Queenscliff
Other Things to Note:
Your stay includes the entire property for your use.
Pet-friendly, additional fee apply.
IGA supermarket is 100m from the property. We are located on the main street so plenty of coffee shops, cafes, and restaurants are within walking distance of our doorstep.
Woolworths and Coles is in Ocean Grove (a 10- 15-minute drive)
Travel time from Melbourne to Queenscliff is approximately 90 minutes from the city.
All bedrooms are located on the first floor. We have a recently installed platform stair lift available for access during your stay.
A duty of care and personal safety is to be taken at all times by all guests while staying on the Seaview House premises.
Visitors unknown to the guests are not permitted to enter the property.
The property is a smoke-free premises, including a first-floor balcony.
Interaction with Guests:
As your hosts we will welcome you on arrival and take you for a walk through of the property and its facilities. We do not stay on site however we are available to contact and be on hand during your stay.
Our aim is simple: to offer our guests a unique experience and warm and welcoming getaway.
This 15 Bedrooms House provides accommodation with Pet Friendly, TV, Wellness Facilities, for your convenience. This House features many amenities for guests who want to stay for a few days, a weekend or probably a longer vacation with family, friends or group. The rental House has 15 Bedrooms and 15 Bathrooms to make you feel right at home.
Check to see if this House has the amenities you need and a location that makes this a great choice to stay in Queenscliff. Enjoy your stay in Queenscliff at this House.
Amenities
Facility Overview
-
Air conditioning
-
Heating
-
Towels provided
-
Shower
-
Hair dryer
-
15 bathrooms
-
Bed sheets provided
-
15 bedrooms
-
Fireplace
-
Toaster
-
Cookware/dishes/utensils
-
Coffee/tea maker
-
Oven
-
Refrigerator
-
Dishwasher
-
Microwave
-
Stovetop
-
Washing machine and dryer
-
Laundry facilities
-
Pet friendly
-
Welcoming dogs only
-
3 total (up to 55 lbs per pet)
-
Smoke-free property
-
Golf privileges
-
Scuba diving nearby
-
Cycling nearby
-
TV
-
Books
-
At least 80% lighting from LEDs
-
Recycling
-
Composting
-
Local artist showcase
-
Eco-friendly cleaning products provided
-
English
-
Office
-
Highchair
-
Children's toys
-
Travel crib
-
Iron/ironing board
-
Change of bedsheets (on request)
-
Change of towels (on request)
-
WiFi available
-
Garden
-
Balcony
-
Barbecue grill
-
Smoke detector installed (host has indicated there is a smoke detector on the property)
-
First aid kit
-
Fire extinguisher
-
Carbon monoxide detector installed (host has indicated there is a carbon monoxide detector on the property)
Policies
Extra-person charges may apply and vary depending on property policy government-issued photo identification and a credit card, debit card, or cash deposit may be required at check-in for incidental charges host has indicated there is a carbon monoxide detector on the property host has indicated there is a smoke detector on the property parties and events (including family gatherings, birthday parties and weddings) are allowed on site; maximum attendees: 35 safety features at this property include a fire extinguisher and a first aid kit special requests are subject to availability upon check-in and may incur additional charges; special requests cannot be guaranteed this property is managed through our partner, vrbo. you will receive an email from vrbo with a link to a vrbo account, where you can change or cancel your reservation this property uses eco-friendly cleaning products