Beachfront, ocean views, family friendly! | Apartment in Malua Bay

2 Bedroom Apartment in Malua Bay
Front Row @ Malua Bay – your beachfront ticket to the enchanting NSW South Coast!
With sweeping ocean views and direct beach access, 2 bedrooms and modern living and dining, your comfort is the main act. Everything you need to relax, unwind and have fun is at your doorstep - food, coffee, drinks, recreational amenities and the exquisite Malua Bay Beach.
Build sandcastles, surf the waves, or simply sit and enjoy whale and dolphin watching on the balcony - the best show in town!
Please take a moment to read the house rules and check the amenities before booking – we want you to know exactly what to expect when you arrive.
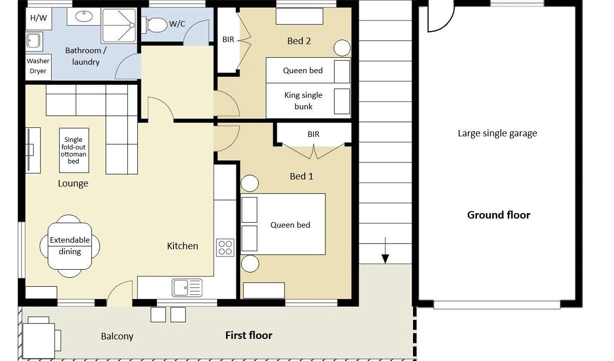
This cosy, newly renovated beachfront unit comfortably sleeps 5 and includes:
- fresh linen and towel packs ready for your stay – simply make up the beds on arrival, or bring your own if you prefer
- bedroom 1 – queen bed
- bedroom 2 – bunk bed (lower queen and upper king single)
- loungeroom – single fold‑out bed
- fully equipped kitchen with dishwasher and Nespresso machine
- private, secure parking for 1 vehicle
- washing machine and heat‑pump dryer
- extendable dining table (seats 4–6)
- comfortable lounge seating for up to 5 people
- 50mbps Wi‑Fi
- brand new 55" smart TV with guest Netflix access
- air conditioning
- portable cot, high chair and baby monitor.
NOTE: This is a first-floor property with access only available via stairs.
Not available for 'schoolies', 'coasties', parties or events.
We appreciate your constructive feedback on how we can make our beach getaway more comfortable for guests. We would be happy to answer any questions that you have.
This 2 Bedrooms Apartment provides accommodation with Air Conditioner, View, Internet, for your convenience. This Apartment features many amenities for guests who want to stay for a few days, a weekend or probably a longer vacation with family, friends or group. The rental Apartment has 2 Bedrooms and 1 Bathroom to make you feel right at home.
Check to see if this Apartment has the amenities you need and a location that makes this a great choice to stay in Malua Bay. Enjoy your stay in Malua Bay at this Apartment.
Amenities
Facility Overview
-
Air conditioning
-
Heating
-
Toilet paper
-
1 bathroom
-
Towels provided
-
Shampoo
-
Hair dryer
-
Soap
-
Shower
-
Bed sheets provided
-
2 bedrooms
-
Dining table
-
Living room
-
Toaster
-
Coffee/tea maker
-
Oven
-
Refrigerator
-
Dishwasher
-
Electric kettle
-
Spices
-
Microwave
-
Stovetop
-
Washing machine and dryer
-
Laundry facilities
-
Beach sun loungers
-
On the beach
-
Onsite parking options include a garage
-
Onsite parking
-
No pets allowed
-
If you have requests for specific accessibility needs, please contact the property using the information on the reservation confirmation received after booking.
-
Stairway handrail height (inches): 39
-
Tile flooring in public areas
-
Smooth flooring in public areas
-
Thin carpet in public areas
-
Well-lit path to entrance
-
No elevators
-
18 stairs to reach property
-
Smoke-free property
-
Handrails in stairways
-
Hiking nearby
-
Marina nearby
-
Surfing/body boarding nearby
-
Golf nearby
-
Whale watching nearby
-
Sailing nearby
-
Fishing nearby
-
Swimming nearby
-
Birdwatching nearby
-
Video games
-
Games
-
Books
-
Video library
-
Smart TV
-
DVD player
-
Recycling
-
Composting
-
At least 80% lighting from LEDs
-
Unit size: 646 sq ft (60 sq m)
-
Near a health or beauty spa
-
On the waterfront
-
Near the ocean
-
Near a hospital
-
Near a zoo
-
Children's books
-
Children's toys
-
Stair gate
-
Children's dinnerware
-
Baby monitor
-
Children's games
-
Highchair
-
Playground
-
Travel crib
-
Iron/ironing board
-
Free WiFi
-
Balcony
-
Smoke detector installed (host has indicated there is a smoke detector on the property)
-
First aid kit
-
No carbon monoxide detector (host has indicated there is no carbon monoxide detector or gas appliances on the property)
-
Deadbolt lock
-
Fire extinguisher
Policies
Extra-person charges may apply and vary depending on property policy government-issued photo identification and a credit card, debit card, or cash deposit may be required at check-in for incidental charges host has indicated there are no carbon monoxide detectors or gas appliances on the property host has indicated there is a smoke detector on the property onsite parties or group events are strictly prohibited property registration number 2536, pid-stra-56846 safety features at this property include a fire extinguisher, a first aid kit, and a deadbolt lock special requests are subject to availability upon check-in and may incur additional charges; special requests cannot be guaranteed this property is managed through our partner, vrbo. you will receive an email from vrbo with a link to a vrbo account, where you can change or cancel your reservation