Everything Portsea, location, views, pool, entertaining, fun! (sleeps 14) | House in Melbourne

6 Bedroom House in Portsea, Melbourne
This impressive limestone residence (sleeps 14), a careful blend of comfort and relaxed holiday style is hugely accommodating for extended family and guests as the ultimate beach side escape.
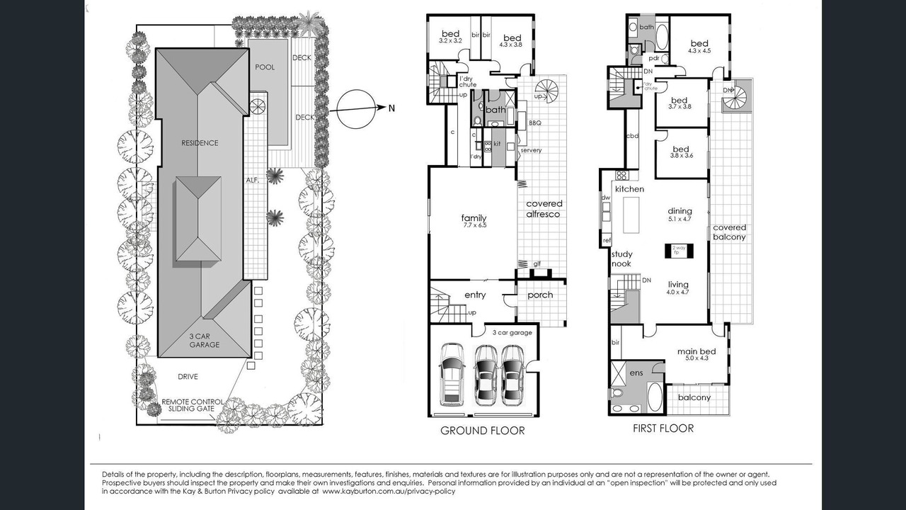
Zoned living and a clever floor plan ensure space and ease to accommodate multiple generations. Downstairs comprising a wide entry hall, family living room with pool table, table tennis table, foosball table, arcade game, with second kitchen with a bi-fold window to serve your guests a champagne through the bar window, to the alfresco BBQ area terrace downstairs with lounge area and alfresco dining with an large luxurious heated pool with deck with sun loungers to relax the days away, there is also an amazing half court basketball court, the children will be entertained all day!
Upstairs comprises an open plan living and dining room with open fireplace and huge terrace with alfresco dining and sitting area that is oriented to offer north facing views of the Bay and showcasing stunning sunsets over the water. There are 4 well-appointed bedrooms upstairs, a large master bedroom with private terrace, dressing room and huge ensuite with bath that overlooks the water. Three further bedrooms upstairs as well as a family bathroom with separate bath and shower.
Located right in the heart of Portsea Village, within steps to Portsea main beach, Portsea Pier, the iconic and beautifully revamped Portsea Hotel and welcoming Village cafes. At the centre of everything and yet with a sense of privacy, the property is fully fenced and gated with two car garage and off-street parking and comes complete with heating and evaporative cooling throughout.
The six bedrooms comprise of:
Upstairs:
1 x King Bed (Sleeps two)
1 x King Bed (Sleeps two)
2 x King Single beds (Sleeps two)
2 x Single Beds (Sleeps two)
Downstairs
1 x Queen Bed (Sleeps two)
2 x Single Bunks (Sleeps four) – No adults on the top bunks – they’re only built for children
Guest access
Guests have access to the whole property including the house, front and back yards, pool and half court, yard is all fully enclosed.
Features we love
As guests of this home, you can enjoy complete privacy and the ultimate in luxury and relaxation.
Pool - Gas heated
Half-court basketball court
Games room with pool table, ping pong and kitchenette
Heating and evaporative cooling throughout
2 Car Garage and 2 parking spaces in driveway.
4 Televisions
All fresh linen and towels included luxurious linens all bed linen is made from natural fibres either Pure Cotton and/or Linen & Cotton. All cushions and throws in the bedrooms and living spaces are also made from Pure Cotton and/or Pure Linen. Great for families that have kids with allergies.
Fabulous outdoor entertaining/BBQ
Pod coffee machine
Shampoo/conditioner, soap, toilet paper, hairdryer, laundry detergent, and kitchen basics provided
Once the booking is confirmed and paid for, you will receive full details on how to access the property.
The Portsea Bay Beach is at the most a 1 minute walk and the Portsea Village and the renowned Portsea Pub are minutes away. The Mornington Peninsula National Park is also close by, offering spectacular cliff top walking tracks.
Beaches
Cafes
National Parks
Watersports
Wineries and gourmet food
This house is perfect for;
Holidays with families with teens and young children
Family beach holiday
Corporate retreats
Jellis Craig Short Stays only choose properties that we would like our own families to stay in on holidays. We are here to assist each of our guests with any queries and is available 7 days a week, 24/7 with any issues that may arise.
Policies:
- No smoking
- No events, parties, or large gatherings
- Guest Registration and Photo ID may be required and confirmation of booking may be subject to approval by management.
- Jellis Craig Short Stays require you to give them your credit card details to hold as security for while you stay
This 6 Bedrooms House provides accommodation with Barbecue/Outdoor Cooking, Pool, View, for your convenience. This House features many amenities for guests who want to stay for a few days, a weekend or probably a longer vacation with family, friends or group. The rental House has 6 Bedrooms and 3 Bathrooms to make you feel right at home.
Check to see if this House has the amenities you need and a location that makes this a great choice to stay in Portsea. Enjoy your stay in Portsea at this House.
Amenities
Facility Overview
-
Air conditioning
-
Heating
-
Shower
-
3 bathrooms
-
Bed sheets provided
-
6 bedrooms
-
Dining table
-
Living room
-
Fireplace
-
Stovetop
-
Refrigerator
-
Microwave
-
Cookware/dishes/utensils
-
Coffee/tea maker
-
Oven
-
Toaster
-
Dishwasher
-
Laundry facilities
-
Washing machine and dryer
-
Near the beach
-
Onsite parking
-
No pets allowed
-
Smoke-free property
-
Marina nearby
-
Jet skiing nearby
-
Surfing/body boarding nearby
-
Snorkeling nearby
-
Winery tours nearby
-
Golf nearby
-
Swimming nearby
-
Golfing on site
-
Basketball nearby
-
Sailing nearby
-
Table tennis
-
Arcade/game room
-
Games
-
Pool or billiards table
-
Smart TV
-
In a village
-
Near the sea
-
Children's dinnerware
-
WiFi available
-
Fenced yard
-
Balcony
-
Barbecue grill
-
Terrace
-
Garden
-
Outdoor entertainment area
-
Smoke detector not reported (host has not indicated whether there is a smoke detector on the property)
-
Carbon monoxide detector not reported (host has not indicated whether there is a carbon monoxide detector on the property; consider bringing a portable detector)
-
Private pool
-
Shared/communal pool
-
Heated pool
-
Sun loungers
Policies
Extra-person charges may apply and vary depending on property policy government-issued photo identification and a credit card, debit card, or cash deposit may be required at check-in for incidental charges host has not indicated whether there is a carbon monoxide detector on the property; consider bringing a portable detector with you on the trip host has not indicated whether there is a smoke detector on the property onsite parties or group events are strictly prohibited special requests are subject to availability upon check-in and may incur additional charges; special requests cannot be guaranteed this property is managed through our partner, vrbo. you will receive an email from vrbo with a link to a vrbo account, where you can change or cancel your reservation