Joanna - Poolside entertainer opposite 'The Cutting' | House in Portsea

4 Bedroom House in Portsea
Basked in natural light, the interiors have been completely remodelled to capture surrounding coastal vibes. Nestled within a beautiful pool and manicured garden setting, it is quintessential Portsea living just metres to the beach and beating heart of the village.
A coveted and highly sought-after address is just the beginning. Beyond the high-hedged front gardens and picturesque wisteria-clad facade, generous and modernised interiors allow connectivity to the outdoors at every turn, highlighting an entertainer's spirit and glorious poolside setting.
Streamlined high ceilings, walls of glass and limed timber floors immediately establish the contemporary credentials through the vast entrance hall and stunning gourmet kitchen, boasting solid stone benches, AEG and Miele appliances and an integrated Miele fridge/freezer. A captivating sense of space in the open-plan family and dining room continues into the rear large formal living with open wood fireplace. French glass doors lead to a glorious private landscaped courtyard and solar heated in-ground pool. With paved patios all around and ample room to lounge on the lawns by the pool, it is a tranquil and perfect setting for alfresco dining and entertaining.
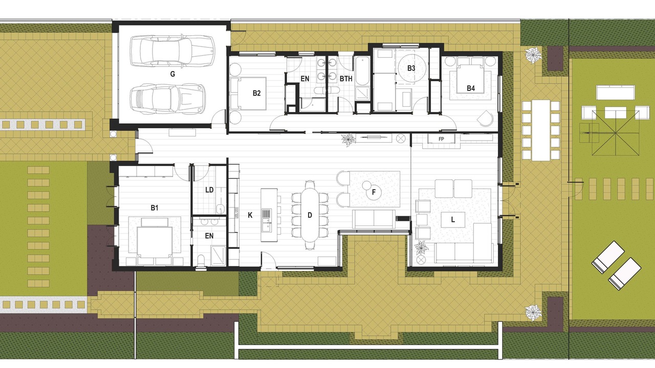
Wonderfully zoned accommodation suits many uses. A palatial main master suite to the front basking in the privacy of garden outlooks is complemented with a fully tiled ensuite. A separate sleeping quarter features a second master bedroom with ensuite and two additional guest bedrooms served by a large central family bathroom.
Just metres from 'The Cutting' accessing Fisherman’s Beach, Point Nepean National Park, Portsea Hotel, the golf course and foreshore, this coastal home includes ducted heating and cooling, a comprehensive laundry, brand new furniture throughout, plantation shutters, and oversized double garage with internal access.
Bedrooms
Bedroom 1 - 1 x King Bed (Sleeps 2)
Bedroom 2 - 1 x King Bed (Sleeps 2)
Bedroom 3 - 1 x Queen Bed (Sleeps 2)
Bedroom 4 – 1 x King Single Bunk, 1 x King Single Bed with 1 x Single trundle bed (Sleeps 4)
NB. Top Bunk cannot accommodate adults, the house is permitted for 8 adults max.
Guests have access to the full house and garden
Strictly No Pets
Toilet paper and provisions for the first night only. BYO beach towels
Once the booking is confirmed and paid for, you will receive full details on how to access the property.
Guest access
Guests have access to the whole property including the house, pool and stunning gardens.
Features we love -
Short walk to Portsea Bay beach, 5 mins walk to Portsea Village, stunning garden & pool setting, free wireless internet, this property has everything you need for a beautiful holiday.
Internet: Free Unlimited Wifi
Bathroom: 3
Car parking: 2 garage plus 2 in driveway
The Mornington Peninsula National Park is also close by, offering spectacular cliff top walking tracks.
Beaches
Cafes
National Parks
Watersports
Wineries and gourmet food
This house is Perfect for:
Holidays with families
Family beach holiday
Luxury stays
Jellis Craig Short Stays only choose properties that we would like our own families to stay in on holidays. We are here to assist each of our guests with any queries and being available 7 days a week, 24/7 with any issues that may arise.
Policies:
- No smoking
- No events, parties or large gatherings
- Guest Registration and Photo ID may be required and confirmation of booking may be subject to approval by management.
- Jellis Craig Short Stays require you to give them your credit card details to hold as security for while you stay. For full details,
please read the house rules.
This 4 Bedrooms House provides accommodation with Balcony/Terrace, Fireplace/Heating, Child Friendly, for your convenience. This House features many amenities for guests who want to stay for a few days, a weekend or probably a longer vacation with family, friends or group. The rental House has 4 Bedrooms and 3 Bathrooms to make you feel right at home.
Check to see if this House has the amenities you need and a location that makes this a great choice to stay in Portsea. Enjoy your stay in Portsea at this House.
Amenities
Facility Overview
-
Air conditioning
-
Heating
-
Toilet paper
-
Shower
-
3 bathrooms
-
4 bedrooms
-
Dining table
-
Living room
-
Fireplace
-
Stovetop
-
Refrigerator
-
Microwave
-
Cookware/dishes/utensils
-
Coffee/tea maker
-
Oven
-
Toaster
-
Dishwasher
-
Laundry facilities
-
Washing machine and dryer
-
No pets allowed
-
Smoke-free property
-
Jet skiing nearby
-
Marina nearby
-
Surfing/body boarding nearby
-
Bicycle on site
-
Winery tours nearby
-
Golf nearby
-
Swimming nearby
-
Golfing on site
-
Fishing nearby
-
Sailing nearby
-
Near the bay
-
Children's dinnerware
-
WiFi available
-
Garden
-
Balcony
-
Barbecue grill
-
Smoke detector not reported (host has not indicated whether there is a smoke detector on the property)
-
Carbon monoxide detector not reported (host has not indicated whether there is a carbon monoxide detector on the property; consider bringing a portable detector)
-
Private pool
-
Shared/communal pool
Policies
Extra-person charges may apply and vary depending on property policy government-issued photo identification and a credit card, debit card, or cash deposit may be required at check-in for incidental charges host has not indicated whether there is a carbon monoxide detector on the property; consider bringing a portable detector with you on the trip host has not indicated whether there is a smoke detector on the property onsite parties or group events are strictly prohibited special requests are subject to availability upon check-in and may incur additional charges; special requests cannot be guaranteed this property is managed through our partner, vrbo. you will receive an email from vrbo with a link to a vrbo account, where you can change or cancel your reservation