Kangaroo Bay Apartments | Apartment in Hobart

19 Bedroom Apartment in Bellerive, Hobart
Ideally set for exploring greater Hobart, Kangaroo Bay Apartments are just 5 minutes' walk from Blundstone Arena/Bellerive Oval. Each self-contained apartment features free WiFi, free parking and a private balcony offering an outdoor dining setting. Most apartments feature mountain views. Bellerive village, the beach and Kangaroo Bluff are all within a few minutes' walk. There are 2-bedroom apartments that sleep up to 6 and a 3-bedroom apartment that sleeps up to 10. Nearby free standing house accommodations is also available, ideal for large groups and families. The air-conditioned, self-contained accommodations features modern décor, a fully equipped kitchen with a dishwasher, a dining setting and private laundry facilities. Each lounge area has a large sofa, a flat-screen TV and a Bluetooth speaker. Bed linen is provided. Additional features include elevator/elevator access to most 2-bedroom apartments, plus a fully wheelchair accessible apartment. Hobart Cruise Terminal is 12 minutes' drive away. There are several shops, cafes and restaurants within 10 minutes' walk.
Kangaroo Bay Apartments is located in Hobart.
This 19 Bedrooms Apartment is suitable for tourists and travelers. It has several amenities that would guarantee your comfort. These amenities include: View, Wheelchair Accessible, Balcony/Terrace, and several others. This is a 4 star rated property and has over 758 reviews with the average score of 9.3 . Coming to Hobart and needing a place to stay? Be it for work or for leisure, consider staying at this Apartment for your next visit, you will surely love it.
You can check the reviews and description of this 19 Bedrooms Apartment if you want to learn more about this place in Hobart. These details are authentic, as they are provided by our partner, booking.com.
This Kangaroo Bay Apartments in Hobart is well equipped and has all facilities that have been listed below. Please note that these details were shared to us by booking.com for the listed “Kangaroo Bay Apartments”. We solely rely on their shared details and are regarded as “accurate”. If you have any concerns about the information or accuracy describing this Apartment, please let us know.
Amenities
Facility Overview
-
Private Parking
-
Parking on site
-
Accessible parking
-
Parking
-
Free parking
-
Toilet with grab rails
-
Wheelchair accessible
-
Lowered sink
-
Beach
-
Fishing
-
Heating
-
Smoke-free property
-
Facilities for disabled guests
-
Family rooms
-
Non-smoking rooms
-
Elevator
-
Air conditioning
-
Express check-in/out
-
Private check-in/out
-
Invoice provided
-
Wifi
-
Internet
-
Free Wifi
-
Terrace
-
CCTV in common areas
-
Key access
-
CCTV outside property
-
Fire extinguishers
-
Smoke alarms
-
Guest accommodation disinfected between stays
-
Linens, towels, and laundry washed in accordance with local authority guidelines
-
Use of cleaning chemicals that are effective against coronavirus
-
Guests have the option to cancel any cleaning services for their accommodation during their stay
-
Guest accommodation sealed after cleaning
-
Property cleaned by professional cleaning companies
-
Shared stationery (e.g. printed menus, magazines, pens, paper) removed
-
Staff follow all safety protocols as directed by local authorities
-
Contactless check-in/out
-
Cashless payment available
-
Physical distancing rules followed
Policies
A baby crib and bedding is available in all accommodations, and does not need to be specifically requested.this property does not accommodate bachelor(ette) or similar parties.
Reviews
Room Arrangement
Room Info | Facilities |
---|---|
Two-Bedroom Apartment 6
Room Type:
Apartment
Room Size:
80 m2
|
Food & DrinkTea/Coffee makerBathroomPrivate bathroom, Bathtub or shower, Shower, Toilet, Towels, Body soap, Toilet paper, Walk-in shower, Shampoo, Conditioner, Free toiletries, HairdryerMedia & TechnologyTV, iPod dock, Flat-screen TVGeneralHeating, Carpeted, Fire extinguisher, Iron, Ironing facilities, Key access, Hardwood or parquet floors, Air conditioning, Trash cans, Smoke Alarm, Electric blanketsOutdoorsBalcony, Barbecue, Outdoor dining area, Outdoor furnitureKitchenWashing machine, Cleaning products, Dining table, Toaster, Oven, Wine glasses, Electric kettle, Kitchen, Microwave, Stovetop, Kitchenware, Dishwasher, Dryer, Refrigerator, High chairLiving AreaSitting area, Dining area, SofaBedroomWalk-in closet, Linens, Childrens' cribs, Wardrobe or closetViewLandmark view, View, Quiet street view, Mountain viewAccessibilityAccessible by elevator, Upper floors accessible by elevatorBuilding CharacteristicsPrivate apartment in buildingRoom AmenitiesDrying rack for clothing, Non-feather pillow, Clothes rack, Sofa bed, Socket near the bedLayoutWindowPhysical distancingSingle-room AC for guest accommodation |
Two-Bedroom Apartment 5
Room Type:
Apartment
Room Size:
100 m2
|
Food & DrinkTea/Coffee makerBathroomPrivate bathroom, Bathtub or shower, Shower, Toilet, Towels, Body soap, Toilet paper, Walk-in shower, Shampoo, Conditioner, Free toiletries, HairdryerMedia & TechnologyTV, iPod dock, Flat-screen TVGeneralHeating, Carpeted, Fire extinguisher, Iron, Ironing facilities, Key access, Hardwood or parquet floors, Air conditioning, Trash cans, Smoke Alarm, Electric blanketsOutdoorsBalcony, Barbecue, Outdoor dining area, Outdoor furnitureKitchenWashing machine, Cleaning products, Dining table, Toaster, Oven, Wine glasses, Electric kettle, Kitchen, Microwave, Stovetop, Kitchenware, Dishwasher, Dryer, Refrigerator, High chairLiving AreaSitting area, Dining area, SofaViewLandmark view, View, Quiet street view, Mountain viewBedroomLinens, Childrens' cribs, Wardrobe or closetAccessibilityToilet with grab rails, Raised toilet, Accessible by elevator, Roll-in shower, Upper floors accessible by elevator, Lower sink, Entire unit wheelchair accessible, Shower chairBuilding CharacteristicsPrivate apartment in buildingRoom AmenitiesDrying rack for clothing, Non-feather pillow, Clothes rack, Sofa bed, Socket near the bedLayoutWindowPhysical distancingSingle-room AC for guest accommodation |
Two-Bedroom Apartment 7
Room Type:
Apartment
Room Size:
100 m2
|
Food & DrinkTea/Coffee makerBathroomPrivate bathroom, Bathtub or shower, Shower, Toilet, Towels, Body soap, Toilet paper, Walk-in shower, Shampoo, Conditioner, Free toiletries, HairdryerMedia & TechnologyTV, iPod dock, Flat-screen TVGeneralHeating, Carpeted, Fire extinguisher, Iron, Ironing facilities, Key access, Hardwood or parquet floors, Air conditioning, Trash cans, Smoke Alarm, Electric blanketsOutdoorsBalcony, Barbecue, Outdoor dining area, Outdoor furnitureKitchenWashing machine, Cleaning products, Dining table, Toaster, Oven, Wine glasses, Electric kettle, Kitchen, Microwave, Stovetop, Kitchenware, Dishwasher, Dryer, Refrigerator, High chairLiving AreaSitting area, Dining area, SofaViewLandmark view, View, Quiet street view, Mountain viewBedroomLinens, Childrens' cribs, Wardrobe or closetAccessibilityAccessible by elevator, Upper floors accessible by elevatorBuilding CharacteristicsPrivate apartment in buildingRoom AmenitiesDrying rack for clothing, Non-feather pillow, Clothes rack, Sofa bed, Socket near the bedLayoutWindowPhysical distancingSingle-room AC for guest accommodation |
Three-Bedroom Apartment
Room Type:
Apartment
Room Size:
177 m2
|
Food & DrinkTea/Coffee makerBathroomPrivate bathroom, Bathtub or shower, Bathtub, Shower, Conditioner, Guest bathroom, Toilet, Towels, Body soap, Toilet paper, Walk-in shower, Shampoo, Additional bathroom, Free toiletries, HairdryerMedia & TechnologyTV, iPod dock, Flat-screen TVGeneralHeating, Carpeted, Fire extinguisher, Iron, Ironing facilities, Interconnecting room(s) available, Key access, Hardwood or parquet floors, Air conditioning, Trash cans, Smoke Alarm, Electric blanketsOutdoorsBalcony, Barbecue, Outdoor furniture, Outdoor dining area, Patio, TerraceKitchenWashing machine, Cleaning products, Dining table, Toaster, Oven, Wine glasses, Electric kettle, Kitchen, Microwave, Stovetop, Kitchenware, Dishwasher, Dryer, RefrigeratorLiving AreaSitting area, Dining area, SofaBedroomWalk-in closet, Linens, Childrens' cribs, Wardrobe or closetViewLandmark view, View, Quiet street viewAccessibilityUpper floors accessible by stairs onlyBuilding CharacteristicsPrivate apartment in buildingRoom AmenitiesDrying rack for clothing, Non-feather pillow, Clothes rack, Sofa bed, Socket near the bedLayoutWindowPhysical distancingSingle-room AC for guest accommodation |
Three Bedroom Cottage
Room Type:
Apartment
Room Size:
110 m2
|
Food & DrinkTea/Coffee makerBathroomPrivate bathroom, Bathtub or shower, Shower, Conditioner, Guest bathroom, Toilet, Towels, Body soap, Toilet paper, Walk-in shower, Shampoo, Additional bathroom, Free toiletries, HairdryerMedia & TechnologyTV, iPod dock, Flat-screen TVGeneralHeating, Carpeted, Fire extinguisher, Iron, Ironing facilities, Fan, Key access, Private entrance, Hardwood or parquet floors, Air conditioning, Trash cans, Smoke Alarm, Electric blanketsOutdoorsBalcony, Outdoor furniture, Outdoor dining area, Patio, TerraceKitchenWashing machine, Cleaning products, Dining table, Toaster, Oven, Wine glasses, Electric kettle, Kitchen, Microwave, Stovetop, Coffee machine, Kitchenware, Dishwasher, Dryer, RefrigeratorLiving AreaSitting area, Dining area, SofaViewLandmark view, View, Quiet street view, Mountain viewBedroomLinens, Childrens' cribs, Wardrobe or closetAccessibilityEntire unit located on ground floorBuilding CharacteristicsDetachedRoom AmenitiesDrying rack for clothing, Non-feather pillow, Clothes rack, Sofa bed, Socket near the bedEntertainment & Family ServicesBoard games/puzzlesLayoutWindowPhysical distancingSingle-room AC for guest accommodation |
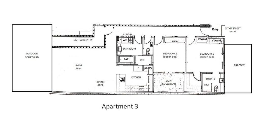
Two-Bedroom Deluxe - Apartment 3
Room Type:
Apartment
Room Size:
130 m2
|
Food & DrinkTea/Coffee makerBathroomPrivate bathroom, Bathtub or shower, Bathtub, Shower, Conditioner, Guest bathroom, Toilet, Towels, Body soap, Toilet paper, Walk-in shower, Shampoo, Additional bathroom, Free toiletries, HairdryerMedia & TechnologyTV, iPod dock, Flat-screen TVGeneralHeating, Carpeted, Fire extinguisher, Iron, Ironing facilities, Fan, Interconnecting room(s) available, Key access, Hardwood or parquet floors, Air conditioning, Trash cans, Smoke Alarm, Electric blanketsOutdoorsBalcony, Barbecue, Outdoor furniture, Outdoor dining area, Patio, TerraceKitchenWashing machine, Cleaning products, Dining table, Toaster, Oven, Wine glasses, Electric kettle, Kitchen, Microwave, Stovetop, Kitchenware, Dishwasher, Dryer, RefrigeratorLiving AreaSitting area, Dining area, SofaBedroomWalk-in closet, Linens, Childrens' cribs, Wardrobe or closetViewRiver view, Landmark view, View, Quiet street viewAccessibilityUpper floors accessible by stairs onlyBuilding CharacteristicsPrivate apartment in buildingRoom AmenitiesDrying rack for clothing, Non-feather pillow, Clothes rack, Sofa bed, Socket near the bedLayoutWindowPhysical distancingSingle-room AC for guest accommodation |
Three-Bedroom House
Room Type:
Vacation Home
Room Size:
170 m2
|
Food & DrinkTea/Coffee makerBathroomPrivate bathroom, Bathtub or shower, Bathtub, Shower, Conditioner, Guest bathroom, Toilet, Towels, Body soap, Toilet paper, Walk-in shower, Shampoo, Additional bathroom, Free toiletries, HairdryerMedia & TechnologyTV, iPod dock, Flat-screen TVGeneralHeating, Carpeted, Fire extinguisher, Iron, Ironing facilities, Key access, Private entrance, Hardwood or parquet floors, Air conditioning, Trash cans, Smoke Alarm, Electric blanketsOutdoorsBalcony, Patio, Outdoor dining area, Outdoor furnitureKitchenWashing machine, Cleaning products, Dining table, Toaster, Oven, Wine glasses, Electric kettle, Kitchen, Microwave, Stovetop, Coffee machine, Kitchenware, Dishwasher, Dryer, Refrigerator, High chairLiving AreaSitting area, Dining area, SofaBedroomWalk-in closet, Linens, Childrens' cribs, Wardrobe or closetViewLandmark view, View, Quiet street view, Mountain viewAccessibilityUpper floors accessible by stairs onlyBuilding CharacteristicsDetachedRoom AmenitiesDrying rack for clothing, Non-feather pillow, Clothes rack, Sofa bed, Socket near the bedEntertainment & Family ServicesBoard games/puzzlesLayoutWindowPhysical distancingSingle-room AC for guest accommodation |
Apartment
Room Type:
Apartment
Room Size:
80 m2
|
Food & DrinkTea/Coffee makerBathroomPrivate bathroom, Bathtub or shower, Shower, Toilet, Towels, Body soap, Toilet paper, Walk-in shower, Shampoo, Conditioner, Free toiletries, HairdryerMedia & TechnologyTV, iPod dock, Flat-screen TVGeneralHeating, Carpeted, Fire extinguisher, Iron, Ironing facilities, Key access, Hardwood or parquet floors, Air conditioning, Trash cans, Smoke Alarm, Electric blanketsOutdoorsBalcony, Barbecue, Outdoor dining area, Outdoor furnitureKitchenWashing machine, Cleaning products, Dining table, Toaster, Oven, Wine glasses, Electric kettle, Kitchen, Microwave, Stovetop, Kitchenware, Dishwasher, Dryer, Refrigerator, High chairLiving AreaSitting area, Dining area, SofaBedroomWalk-in closet, Linens, Childrens' cribs, Wardrobe or closetViewLandmark view, View, Quiet street view, Mountain viewAccessibilityAccessible by elevator, Upper floors accessible by elevatorBuilding CharacteristicsPrivate apartment in buildingRoom AmenitiesDrying rack for clothing, Non-feather pillow, Clothes rack, Sofa bed, Socket near the bedPhysical distancingSingle-room AC for guest accommodation |