Orangerie A Stunning Shoe Factory Conversion | House in Brunswick

2 Bedroom House in Brunswick
In the heart of Brunswick, this stunning townhouse has undergone an impeccable renovation to become a true inner-city sanctuary. It features classic monochrome styling, with grand oversized windows, spacious light-filled living areas and alfresco dining on the patio. Walk to the dining hubs of Lygon Street and Sydney Road – with a bounty of shops, cafes and restaurants to explore – or jump on a tram for the quick ride into the CBD. This beautiful home is well-suited to both short and long stays.
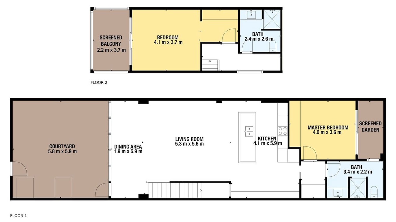
Staged over two levels, what was once a bustling inner-north factory has been converted into an urban solace. Bathed in natural light, it benefits from a gorgeous leafy patio, with bi-fold doors drawing the outdoors in. Inside, every detail has been thoughtfully considered to create a sophisticated and stylish retreat.
The open plan living and dining area ensures there’s ample room to spread out. Come together at the large dining table or use this space for setting up your laptop, taking in the fresh air and gorgeous scenery. Relax on plush leather sofas with a central smart TV and indoor fireplace, encouraging cosy nights in. The gourmet kitchen is designed around a central island and extends the monochrome theme with dark cabinetry and white subway tiles. It’s fully equipped for all your catering needs.
Downstairs you’ll find the first bedroom. It comes with a queen-sized bed along with plenty of storage space for your belongings, and benefits from its own wintergarden. Upstairs is the master bedroom, featuring wall-to-wall windows and a balcony with shutters. There is a bathroom beside the master along with a second bathroom downstairs. Each is immaculately presented with boutique toiletries provided for your stay. Guests will also have access to internal laundry facilities including a washing machine and dryer.
Free street parking is available.
During your stay, you and your group will have the entire townhouse to yourself. Please make yourself at home!
Brunswick—arguably one of Melbourne’s trendiest suburbs—is known for its eclectic ambience, and you’ll be right in the heart of it. Sitting three minutes’ walk from Lygon Street, feel the pulse of underground live music venues, discover your new favourite craft beer at local breweries and shop at some of the best op shops in the city.
Grab a morning brew at John Gorilla cafe, stroll the streets admiring the heritage Victorian architecture, enjoy a laid back pub-style meal at The Penny Black or join the locals at Code Black for arguably the suburb’s best breakfast.
Plus, if you’re not exploring by car, you have a number of trams available within a few minutes’ walk—as well as Brunswick Train Station just fifteen minutes’ walk away—that’ll connect you with the rest of the city.
Due to local regulations, we can happily host you for up to 90 nights. Any bookings that exceed this duration will be cancelled by Vrbo.
This 2 Bedrooms House provides accommodation with Kitchen, Balcony/Terrace, Security/Safety, for your convenience. This House features many amenities for guests who want to stay for a few days, a weekend or probably a longer vacation with family, friends or group. The rental House has 2 Bedrooms and 2 Bathrooms to make you feel right at home.
Check to see if this House has the amenities you need and a location that makes this a great choice to stay in Brunswick. Enjoy your stay in Brunswick at this House.
Amenities
Facility Overview
-
Air conditioning
-
Hair dryer
-
Towels provided
-
2 bathrooms
-
Bed sheets provided
-
2 bedrooms
-
Dining table
-
Living room
-
Fireplace
-
Dishwasher
-
Oven
-
Refrigerator
-
Microwave
-
Stovetop
-
Coffee/tea maker
-
Cookware/dishes/utensils
-
Washing machine and dryer
-
Laundry facilities
-
No pets allowed
-
Smoke-free property
-
Property does not allow children
-
Unit size: 1432 sq ft (133 sq m)
-
Desk
-
Iron/ironing board
-
WiFi available
-
Balcony
-
Carbon monoxide detector not reported (host has not indicated whether there is a carbon monoxide detector on the property; consider bringing a portable detector)
-
Smoke detector installed (host has indicated there is a smoke detector on the property)
Policies
Extra-person charges may apply and vary depending on property policy government-issued photo identification and a credit card, debit card, or cash deposit may be required at check-in for incidental charges host has indicated there is a smoke detector on the property host has not indicated whether there is a carbon monoxide detector on the property; consider bringing a portable detector with you on the trip onsite parties or group events are strictly prohibited special requests are subject to availability upon check-in and may incur additional charges; special requests cannot be guaranteed this property has outdoor spaces, such as balconies, patios, terraces which may not be suitable for children; if you have concerns, we recommend contacting the property prior to your arrival to confirm they can accommodate you in a suitable room this property is managed through our partner, vrbo. you will receive an email from vrbo with a link to a vrbo account, where you can change or cancel your reservation