Salt And Pepper in Mollymook | House in Mollymook Beach

4 Bedroom House in Mollymook Beach
McGrath Estate Agents welcome you to Salt and Pepper
Location
This property is located at the northern end of Mollymook Beach, only a short flat stroll onto its pearly white sands. The area is bustling with local markets especially leading up to Easter and Christmas. Historic Milton is 5 minutes away in the car and Ulladulla is serviced by Twin Cinemas for lazy nights or wet weekends. Golfers can have the choice between one of the more scenic nine hole courses on the coast or a challenging 18 hole championship course on the Hilltop. Renowned as one of the best surfing beaches on the South Coast and home of many State and National Surf Life Saving championships. Each end of the beach is nicely sheltered for young children. The southern end of the beach is patrolled all year round and the northern end during the Christmas holiday period. Narrawallee is a short car ride away for equally beautiful beach and sheltered inlet.
Stylish Coastal Interior
This is the ideal beach house suitable for two families or large groups with multiple living areas, generous entrance and a decent dining setting to accommodate all. The home is lovely bright with a very relaxing ambience and you can literally hear the waves. Surfing, fishing, golfing, fine dining or relaxing on the deck with a book. It is set on a sunny flat block that is fully fenced creating a safe haven for children to play.
Outside is an additional shower to wash off the salt and sand from your last dip across the road at Mollymook Beach, not to mention the paved area is the an ideal spot to host your family and friends with a BBQ for the these long balmy summer nights. The sunsets down here are an absolute delight with so many colours scattered across the sky, you wont be disappointed.
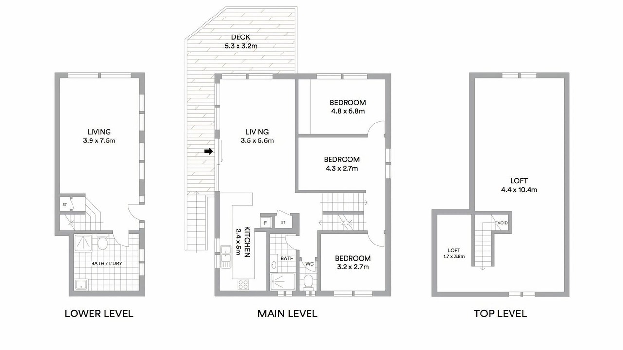
Home Configuration
Entry Level
- Lounge Room
- Laundry
- Bathroom: Shower, Toilet, Vanity
Level 2
- Bathroom: Bath, Shower, Toilet, Vanity
- Kitchen
- Sitting Area
Level 3
- Bedroom 1: Queen Bed
- Bedroom 2: 2 Bunk Beds
- Bedroom 3: Double Bed
Level 4
- Kids Retreat: 2 x Single Beds
- Loft Area
Please Note:
- Outdoor shower is hot water, so be mindful when using because it will impact hot water internally.
- McGrath Estate Agents have a strict no party/schoolies events policy.
Disclaimer: The above information has been furnished to us by a third party. We have not verified whether or not that information is accurate and do not have any belief one way or another in its accuracy. We do not accept any responsibility to any person for its accuracy and do no more than pass it on. All interested parties should make and rely upon their own enquiries in order to determine whether or not this information is in fact correct.
To ensure your check in process is streamlined, all guests must complete a guest registration process including ID verification.
Rest assured that all information provided will be kept confidential and used solely for the purpose of enhancing your experience with us. We adhere to strict data protection policies to safeguard your privacy.
This 4 Bedrooms House provides accommodation with Ocean View, Security/Safety, Kitchen, for your convenience. This House features many amenities for guests who want to stay for a few days, a weekend or probably a longer vacation with family, friends or group. The rental House has 4 Bedrooms and 2 Bathrooms to make you feel right at home.
Check to see if this House has the amenities you need and a location that makes this a great choice to stay in Mollymook Beach. Enjoy your stay in Mollymook Beach at this House.
Amenities
Policies
Extra-person charges may apply and vary depending on property policy government-issued photo identification and a credit card, debit card, or cash deposit may be required at check-in for incidental charges host has not indicated whether there is a carbon monoxide detector on the property; consider bringing a portable detector with you on the trip host has not indicated whether there is a smoke detector on the property onsite parties or group events are strictly prohibited property registration number pid-stra-7488 special requests are subject to availability upon check-in and may incur additional charges; special requests cannot be guaranteed this property has outdoor spaces, such as balconies, patios, terraces which may not be suitable for children; if you have concerns, we recommend contacting the property prior to your arrival to confirm they can accommodate you in a suitable room this property is managed through our partner, vrbo. you will receive an email from vrbo with a link to a vrbo account, where you can change or cancel your reservation