Snowgums on the Lake - Charming 4BR Home l Amazing Lake Views l Balcony | House in EAST JINDABYNE

4 Bedroom House in East Jindabyne
Welcome to Snowgums On The Lake!
Ski More, Spend Less This Spring - With 30% discount on Accommodation
Whether you're chasing the last powder days or just want a cozy escape, now’s the perfect time to book. Think crisp mornings, bluebird days, and fewer crowds — But better get in before October 6!
Book now for 30% off and make the most of the snow while it lasts!
*Terms and conditions apply - Discount automatically applied when dates are selected.
Located in Tyrolean Village on the waters edge, Snowgums on the Lake enjoys stunning views over both Lake Jindabyne and the Snowy Mountains. The cosy fire place on the ground floor is a great place to share stories in winter and the convenient lake access in summer will keep all entertained. With air conditioning on the ground level this property is terrific in all seasons!
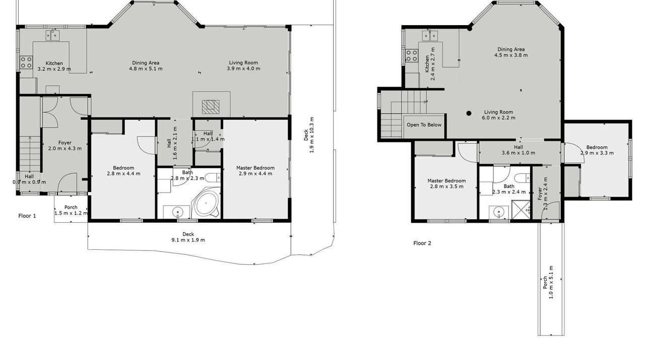
This 2 storey, spacious, stand alone property sleeps up to 8 people. Ideal for 2 families wishing to share their holiday experience or a large family with older children who like their own space. The 2 separate designated living areas will be appealing to all ages.
Snowgums on the Lake has 4 bedrooms, 2 bathrooms (including laundry facilities in each) 2 kitchens, 2 living areas, and a large balcony overlooking the lake.T his home-away from home is only 5 minutes drive from the main shops of Jindabyne and another 30 minutes drive to Perisher or Thredbo.
Firewood is NOT supplied for this property
Please note: Wifi is not available.
This property is 'Not Pet Friendly'
This 4 Bedrooms House provides accommodation with Parking, Balcony/Terrace, Entertainment, for your convenience. This House features many amenities for guests who want to stay for a few days, a weekend or probably a longer vacation with family, friends or group. The rental House has 4 Bedrooms and 2 Bathrooms to make you feel right at home.
Check to see if this House has the amenities you need and a location that makes this a great choice to stay in East Jindabyne. Enjoy your stay in East Jindabyne at this House.
Amenities
Policies
Extra-person charges may apply and vary depending on property policy government-issued photo identification and a credit card, debit card, or cash deposit may be required at check-in for incidental charges host has indicated there is a smoke detector on the property host has not indicated whether there is a carbon monoxide detector on the property; consider bringing a portable detector with you on the trip onsite parties or group events are strictly prohibited property registration number pid-stra-5115 safety features at this property include a fire extinguisher special requests are subject to availability upon check-in and may incur additional charges; special requests cannot be guaranteed this property is managed through our partner, vrbo. you will receive an email from vrbo with a link to a vrbo account, where you can change or cancel your reservation