StayCentral - Moonee Ponds Penthouse - Mount Alexander Rd, Moonee Ponds - 3 Bedrooms, 4 Beds, 2 Bathrooms, 2 secure undercover parking spot. | Apartment in Moonee Ponds

3 Bedroom Apartment in Moonee Ponds
StayCentral Moonee Ponds Penthouse
About the ApartmentStayCentral Moonee Ponds Penthouse is a stunning, luxury, three-bedroom apartment set within a boutique block of only twelve residences. Located in a modern city-edge precinct on the border of Moonee Ponds and Essendon, this spacious penthouse is perfect for families, corporate groups, or longer stays for those seeking space, comfort, and convenience just moments from local cafes, restaurants, and shopping.
This beautifully presented, fully furnished apartment boasts a sophisticated designer interior, modern appliances, and a huge 30m balcony with spectacular, sweeping views towards the Melbourne city skyline and across the eastern and western suburbs. Recently refurbished, it offers generous living spaces with a smart, efficient layout that blends contemporary style with practical comforts.
Property Features
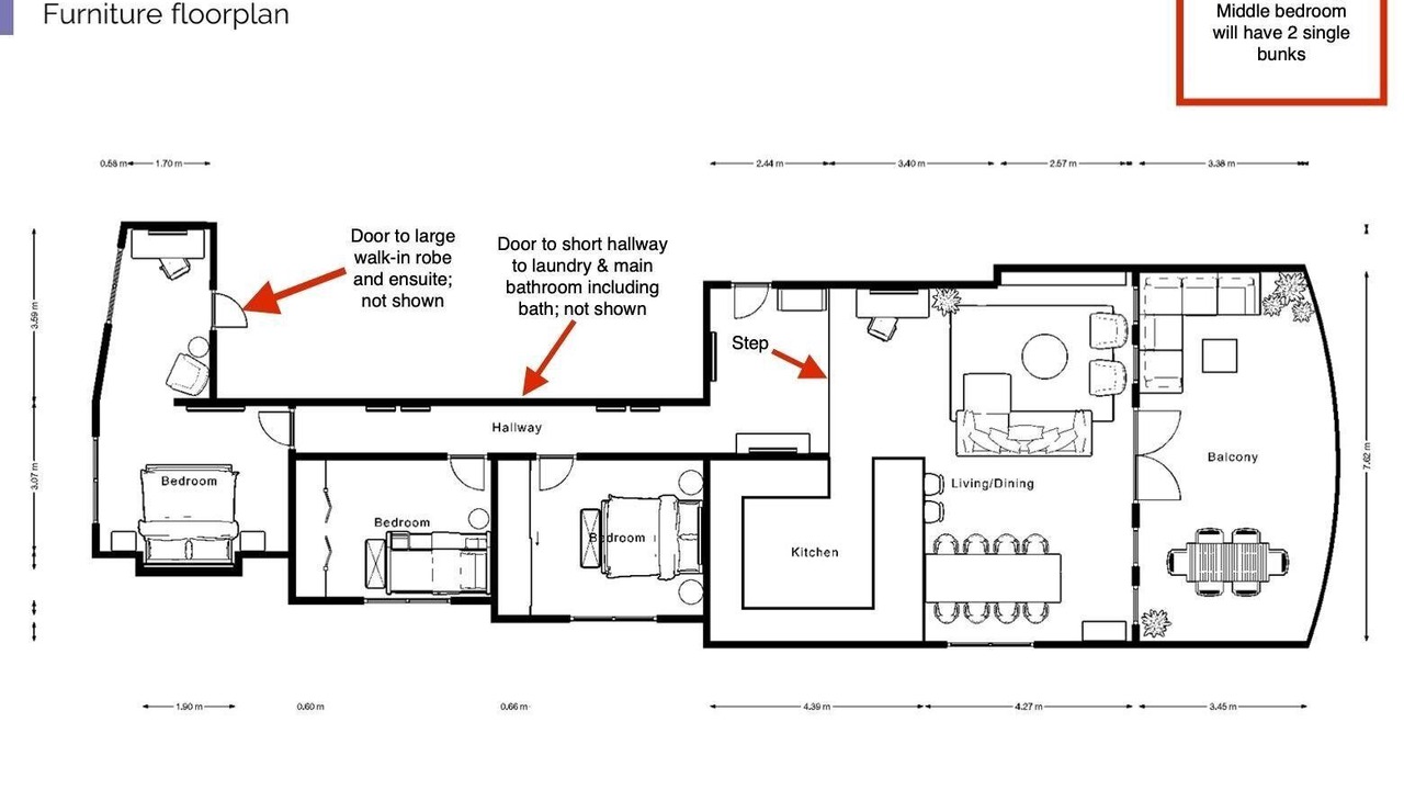
Fully furnished, designer-interior, spacious penthouse (approx. 160m)
Expansive 30m balcony with city skyline views from the 6th floor
Three large bedrooms with built-in robes
Two sparkling modern bathrooms (one ensuite)
Huge, fully equipped kitchen with large oven, cooktop, microwave, dishwasher, and coffee machine
Comfortable open-plan living and dining area
Dedicated study room and second desk area in the living space
Two outdoor dining settings on the balcony
Large 50 HD Smart TV with Netflix in the living area
Secure video intercom, lift access, and a secure foyer
Solid hardwood floors and split-system heating and cooling throughout
Storage cage above one of the two secure undercover car spaces (side by side, clearance 2.7m)
Pet-Friendly AccommodationWe welcome pets at StayCentral Moonee Ponds Penthouse, subject to our pet stay conditions. Pets must be declared when booking, and a pet stay fee applies. There are several leash-free parks nearby, including Lagoon Reserve, with a dedicated dog beach at the end of Bay Street.
Location HighlightsPerfectly positioned for a city-edge lifestyle, this apartment enjoys proximity to the Moonee Ponds shopping and dining precinct, Essendon Station, Queens Park, and several elite schools and colleges. The tram stop at Fletcher Street is only 200m away, providing easy access to Melbournes CBD and the citys entertainment, sporting, and arts precincts.
Within easy reach are DFO Essendon, Moonee Valley Racecourse, Flemington Racecourse, and Tullamarine Airport all making this a brilliant base for both corporate and leisure stays.
Public Transport
Walk to Essendon Train Station for direct access to Melbourne CBD
200m to tram stops on Mount Alexander Road (Route 59)
One train stop to Moonee Ponds shopping and dining precinct
Free tram travel available within Melbournes CBD grid
Getting ThereThe easiest and quickest way to StayCentral Moonee Ponds Penthouse is via taxi or Uber. Alternatively, take the SkyBus from Melbourne Airport to Southern Cross Station, then transfer to the Glenbervie metro train line and disembark at Essendon Station only a short 300m walk from the apartment. Full arrival instructions will be provided upon booking confirmation.
From the OwnersWe loved the location of this apartment, walking distance to Essendon Station, Queens Park, and Moonee Ponds Central, along with many other shops and cafes nearby. The large balcony was a standout for us its size and sweeping city views are a rarity. We always stay here when visiting family in Essendon and Moonee Ponds, and its an easy trip into the city for the theatre or football. The open-plan living, secure parking, and modern bathrooms make every stay so easy and relaxing.
Rates inclusions:
Utilities: water, electricity, gas, and internet
All bed linen and towels, plus extra towels
Departure clean
Interim cleaning services available for an additional fee
Pet fees: $150 per pet
Minimum Stay: 3 nights (30 days), 7 nights (3060 days), 21 nights (60+ days)
Arrival Details:
Late arrival fee (between 10pm8am): $100
Public holiday arrival surcharge: $50
No show fee: $100
Photo ID verification and credit card authorisation required prior to stay
Some bookings may require a refundable security bond
Your Home in MelbourneStayCentral Moonee Ponds Penthouse offers a unique, spacious, and beautifully appointed apartment in a superbly connected location. Whether youre here for work, family, or a long city stay, it delivers exceptional comfort, style, and convenience with stunning sunset views from the balcony to end your day.
This 3 Bedrooms Apartment provides accommodation with Bedding/Linens, Air Conditioner, Kitchen, for your convenience. This Apartment features many amenities for guests who want to stay for a few days, a weekend or probably a longer vacation with family, friends or group. The rental Apartment has 3 Bedrooms and 2 Bathrooms to make you feel right at home.
Check to see if this Apartment has the amenities you need and a location that makes this a great choice to stay in Moonee Ponds. Enjoy your stay in Moonee Ponds at this Apartment.
Amenities
Facility Overview
-
Air conditioning
-
Heating
-
Towels provided
-
2 bathrooms
-
Hair dryer
-
3 bedrooms
-
Dining table
-
Living room
-
Toaster
-
Cookware/dishes/utensils
-
Coffee/tea maker
-
Oven
-
Refrigerator
-
Dishwasher
-
Washing machine and dryer
-
Laundry facilities
-
Onsite parking
-
Welcoming cats and dogs only
-
Pet friendly
-
1 total (up to 55 lbs per pet)
-
Elevator
-
If you have requests for specific accessibility needs, please contact the property using the information on the reservation confirmation received after booking.
-
Smoke-free property
-
Hardwood flooring in public areas
-
Streaming services
-
Netflix
-
Smart TV
-
Unit size: 1722 sq ft (160 sq m)
-
Smartphone data usage (unlimited)
-
English
-
Desk
-
WiFi available
-
Balcony
-
Carbon monoxide detector not reported (host has not indicated whether there is a carbon monoxide detector on the property; consider bringing a portable detector)
-
Smoke detector installed (host has indicated there is a smoke detector on the property)
Policies
Extra-person charges may apply and vary depending on property policy government-issued photo identification and a credit card, debit card, or cash deposit may be required at check-in for incidental charges host has indicated there is a smoke detector on the property host has not indicated whether there is a carbon monoxide detector on the property; consider bringing a portable detector with you on the trip onsite parties or group events are strictly prohibited special requests are subject to availability upon check-in and may incur additional charges; special requests cannot be guaranteed this property is managed through our partner, vrbo. you will receive an email from vrbo with a link to a vrbo account, where you can change or cancel your reservation