Sandcastle | House in Copacabana

3 Bedroom House in Copacabana
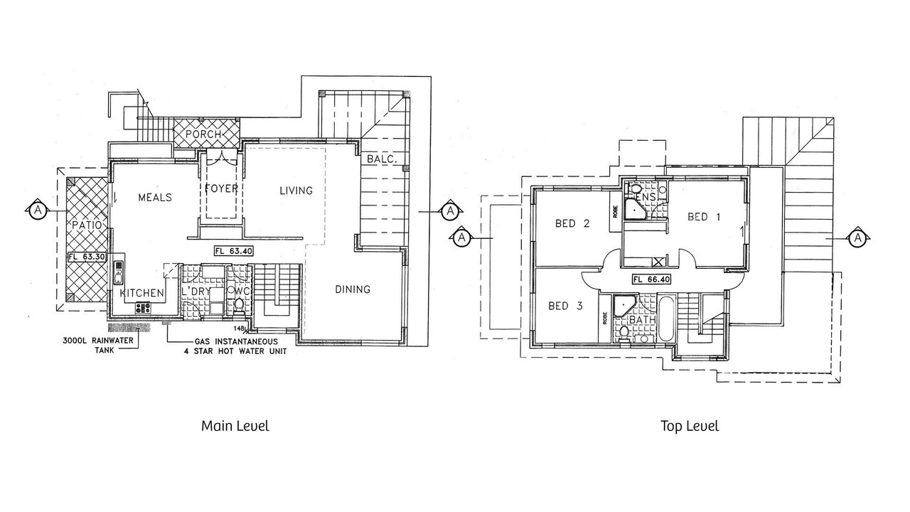
Enter via a double automatic garage with direct internal access up to the middle level for living, lounging, meals & all things entertainment during your stay!
Watch a movie or play some games (indoor or out!) with a 3in1 games table offering table tennis, pool or air hockey – outside the ultimate lawn bowls or putting green to practice your swing! Family kitchen is complete with stainless fridge, dishwasher, coffee machine & breakfast bar opening to casual dining space with round table to seat 8 with high chair available.
With all bedrooms situated on the top level of the property, it will be the perfect time to enjoy a sleep in. All bedrooms feature mirrored built-in wardrobes & bedside tables, master with ensuite, walk-in robe & balcony access. A large master bathroom is complete with freestanding tub to soak in after a long day in the sun at the beach.
Guests please note there is a flat that may be separately occupied underneath the home – access is separate & outdoor spaces are private (if we didn’t tell you, you probably wouldn’t notice).
Features:
- Ducted, reverse cycle air-conditioning and block-out blinds throughout the home
- Alfresco entertaining overlooking fully fenced, private large astro turfed yard
- Wrap around balcony over two levels with beautiful water views for outdoor lounge and dining
- Fully equipped kitchen with all you could need; fridge, dishwasher, coffee machine, microwave
- Large 65inch flat screen wall-mounted smart TV in main living space with modern styling
- Casual dining space with round table for 8 off kitchen opening to yard
- Convertible table tennis / pool table provides a great space to unwind
- Front loader washer and separate dryer in spacious internal laundry
- Modern bathrooms, freestanding tub, ensuite to master bedroom plus powder room
- Double automatic garage provides direct internal access from underneath
Sleep Configuration:
Master: King bed, bedside tables with lamps, walk-in wardrobe, balcony access with water view
2nd bed: Queen bed, bedside tables with lamps, mirrored built-in wardrobes
3rd bed: Queen bed, bedside tables with lamp, mirrored built-in wardrobes
Additional: Cot available.
Location:
Copacabana has a beautiful beach popular for surfing and swimming. Not far from the hustle and bustle this small town is quieter and perfect for anyone looking for a relaxing getaway. Copacabana has a whale viewing platform where during the winter season Humpback Whales can often be seen migrating. Just across from the beach are home owned cafes and takeaway stores. Only a 10 minute drive to Kincumber Shopping Village and a 15 minute drive from Erina Fair there is plenty to do for a day out.
We look forward to assisting you in creating your next holiday
All holiday properties are subject to sundry costs including cleaning, linen and booking fees.
A bond (security deposit) will be required in the form of a pre-authorisation of a credit card for every booking and an online check in form will need to be completed and returned prior to arrival. This involves providing photo ID and a credit card. The online check in form will be sent once the booking is confirmed. Please contact the office to confirm the bond amount as it differs for each property, minimum $1,000 (higher for more prestigious properties).
For bookings longer than 14 days, mid-stay cleans will be required at guests cost. Please contact the office for clarification of the number of mid-stay cleans required based on the length of stay and pricing as the cost will differ for each property.
Sorry, we have a strict no party and no smoking policy.
By moving forward with a booking at this property you are agreeing to the above bond procedures and additional documentation requirements
This 3 Bedrooms House provides accommodation with Balcony/Terrace, Internet, Entertainment, for your convenience. This House features many amenities for guests who want to stay for a few days, a weekend or probably a longer vacation with family, friends or group. The rental House has 3 Bedrooms and 2 Bathrooms to make you feel right at home.
Check to see if this House has the amenities you need and a location that makes this a great choice to stay in Copacabana. Enjoy your stay in Copacabana at this House.
Amenities
Facility Overview
-
Air conditioning
-
Heating
-
Towels provided
-
Shower
-
2+ bathrooms
-
3 bedrooms
-
Bed sheets provided
-
Living room
-
Dining room
-
Stovetop
-
Refrigerator
-
Microwave
-
Cookware/dishes/utensils
-
Coffee/tea maker
-
Oven
-
Toaster
-
Dishwasher
-
Laundry facilities
-
Washing machine and dryer
-
Near the beach
-
Onsite parking options include a garage
-
Onsite parking
-
Pet friendly
-
Smoke-free property
-
Pool or billiards table
-
Arcade/game room
-
Games
-
TV
-
Iron/ironing board
-
Internet access
-
Balcony
-
Barbecue grill
-
Smoke detector not reported (host has not indicated whether there is a smoke detector on the property)
-
Carbon monoxide detector not reported (host has not indicated whether there is a carbon monoxide detector on the property; consider bringing a portable detector)
Policies
Extra-person charges may apply and vary depending on property policy government-issued photo identification and a credit card, debit card, or cash deposit may be required at check-in for incidental charges host has not indicated whether there is a carbon monoxide detector on the property; consider bringing a portable detector with you on the trip host has not indicated whether there is a smoke detector on the property onsite parties or group events are strictly prohibited special requests are subject to availability upon check-in and may incur additional charges; special requests cannot be guaranteed this property is managed through our partner, vrbo. you will receive an email from vrbo with a link to a vrbo account, where you can change or cancel your reservation